Design your dream
K-HOMENET
대산새마을금고 사옥

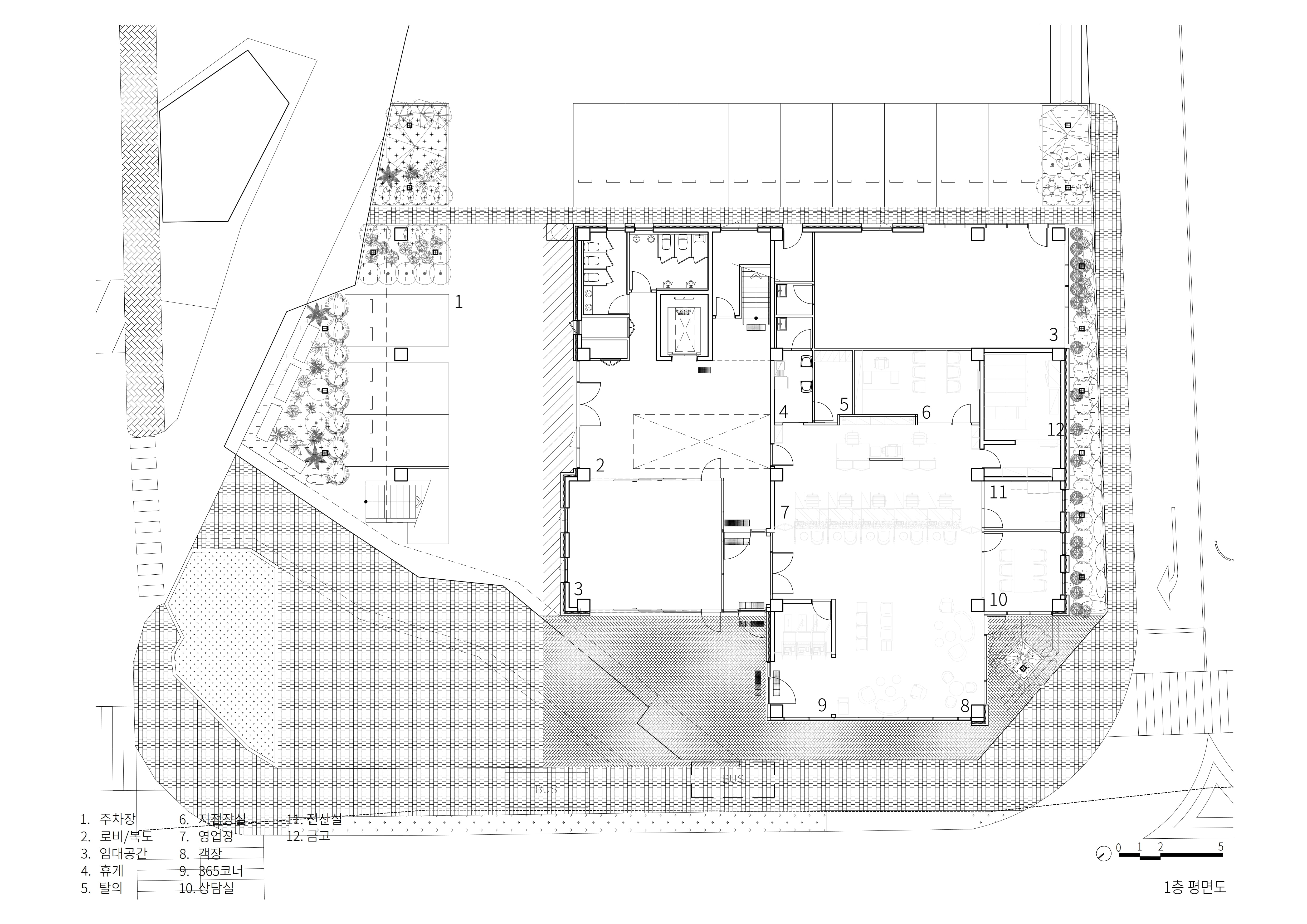
서산시의 방사형 도시구조를 반영하여, 사거리와 주도로에서의 정면성을 강화하는 설계를 통해 도시 특성을 살렸다. 대지형태에 순응하면서 주차 동선은 순환형으로 설계하고, 4면에서의 접근성을 고려하여 도시 효율성을 높였다. 녹지축을 고려하여 자연스럽게 확장 가능한 구조를 설계하고, 휴먼스케일을 반영하여 다면적인 형태로 공간을 구성, 외부공간들이 수직적으로 연결되도록 하여 공간의 다면화와 인지성을 강화했다. 석림동의 지역성을 반영하여, 돌처럼 묵직하고 정직한 기하학적 형태로 설계했으며, 수직정원을 연결하여 숲의 이미지를 형성하고 주민들이 신뢰할 수 있는 새마을금고를 구현하고자 했다. 건물의 배치는 전면도로, 사거리, 아파트에서의 뷰를 고려하여 외부공간들이 효율적으로 연결되도록 했고, 넓은 로비는 VIP 고객 주차장과 연결되어 비를 피할 수 있도록 했다. 또한, 카페와 객장은 유동적으로 활용 가능하며, 포켓정원과 마당을 통해 마을과 자연스럽게 연결되는 공간을 제공했다. 임대공간은 다양한 형태를 수용할 수 있도록 설계되었으며, 강당은 블랙박스 시어터로 제안되어 세미나뿐만 아니라 예술공연도 가능하도록 했다. 건물의 야경은 자연스럽게 경관의 일부로 녹아들도록 빛을 활용하여 디자인했으며, 벽돌로 쌓인 부분은 빛을 받아 더욱 영롱하게 빛나도록 설계했다.

The design reflects the radial urban structure of Seosan City, enhancing the frontality at intersections and main roads to highlight the city's characteristics. The layout adapts to the site shape and features a circular parking flow, optimizing urban efficiency by considering accessibility from all four sides. The structure is designed with the consideration of green axes, allowing for natural expansion, and incorporates a human-scale approach to create a multi-dimensional space. External areas are vertically connected to enhance spatial diversity and visibility. Drawing inspiration from the local character of Seoklim-dong, the design adopts a heavy, honest geometric form, reminiscent of stone, and incorporates vertical gardens to create a forest-like image, aiming to establish a trustworthy Saemaul Geumgo (community bank) for residents. The building’s placement considers views from the front road, intersection, and surrounding apartments, ensuring efficient connectivity of external spaces. A large lobby is directly connected to the VIP parking area, offering shelter from the rain. Additionally, the café and guest rooms are designed to be versatile, and the inclusion of pocket gardens and courtyards seamlessly connects the building to the village and nature. The rental spaces are flexible, accommodating various configurations, and the auditorium is designed as a black box theater, allowing for seminars as well as artistic performances. The building’s nighttime view was designed to integrate naturally into the landscape, with strategic lighting making the brick sections glow beautifully.

대산새마을금고 사옥


위치 : 충남 서산시 석림동 496-1번지

프로그램 : 새마을금고, 365카페, 다목적강당, 이사회실, 임대공간
대지면적 : 1,466.0㎡
건축면적 : 618.73 ㎡
연면적 : 1,679.88㎡
현상설계 : 당선
설계기간 : 2022.1.27. ~ 2022.6.25
시공기간 : 2022.10.18. ~ 2023.8.30
건축시공 : 하우텍건설(주)
기계, 전기 : 태영이엔씨
인테리어 : 다빈디자인
발주처 : 대산새마을금고
설계감리담당 : 김경남, 조성현, 김근주, 박지호
구조형식 : 철근콘크리트구조
외부마감 : 점토벽돌, 로이복층유리(투명)
사진 : 이한울

Daesan Saemaeul Bank
B202202